30° ABZWEIGROHRE ZYLINDRISCH 2 UND 3 MM

PDF Download 302 KB

Abzweigrohre Abzweigrohre
  Maßspezifikationen sind in nachfolgender Tabelle angegeben.

Durchmesser für 2 mm: Ø 100 – Ø 600 mm.

Durchmesser für 3 mm: Ø 150 – Ø 600 mm.

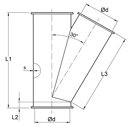
Zylindrische Abzweigrohre sind geschweißt und aus 2,00 und 3,00 mm Material (s) hergestellt.

Das A-, B- und C-Maß wird bei Bestellung angegeben. Die Wahlmöglichkeiten werden dadurch begrenzt, dass A = C und A ≥ B ist. Der Abzweig bestimmt die Länge L1.

L1, L2 und L3 werden anhand der angegebenen Formeln berechnet. Bei doppelten Abzweigrohren ist es der größte Wert, der Durchmesser B, der die Länge L1 auf dem gemeinsamen zylindrischen Stück bestimmt. Hiernach können L2 und L3 für beide Abzweigungen berechnet werden.

Abzweigrohre

Abzweigrohre
Abzweigrohre

 

[ Seitenanfang ]